Комплектация включает в себя:
| Технология | Каркасная технология |
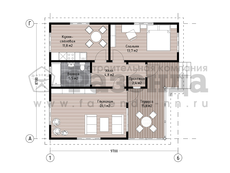
Возможны любые изменения во внешнем виде, планировке и комплектации.Стоимость указана без учета работы. Итоговая стоимость зависит от комплектации и месяца строительства. |
|
| Фундамент | Свайно-Винтовой |
| Стены | -Каркас толщиной 100мм с шагом 600мм, с усилением
-Вентиляционный зазор -Наружная отделка – Вагонка -Теплоизоляция – 100 мм. -Гидро-ветроизоляция -Внутренняя отделка (стены) – Вагонка |
| Перекрытия и полы | -Покрытие пола – шпунтованная доска
-Внутренняя отделка (потолок) – Вагонка -Теплоизоляция пола – 100 мм. |
| Кроля | -Стропила крыши – доска 50х100мм -Обрешетка -Гидро-ветроизоляционная мембрана -Крашеный профлист -Карнизы – Вагонка |
| Окна | ПВХ (размеры в соответствии с проектом) |
| Двери межкомнатные | Филенчатые |
| Дверь входная | Металлическая, утепленная |
| Лестница | — |
| Высота 1 этажа | 2,4 м. |
| Высота 2 этажа | — |
| Дополнения: | Возможно поэтапное строительство дома:
1 этап — фундамент, возведение каркаса под кровлю, окна, входная дверь 2 этап — внутренняя отделка |
| Стоимость: |
1 170 000 руб.
|






