Комплектация включает в себя:
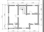
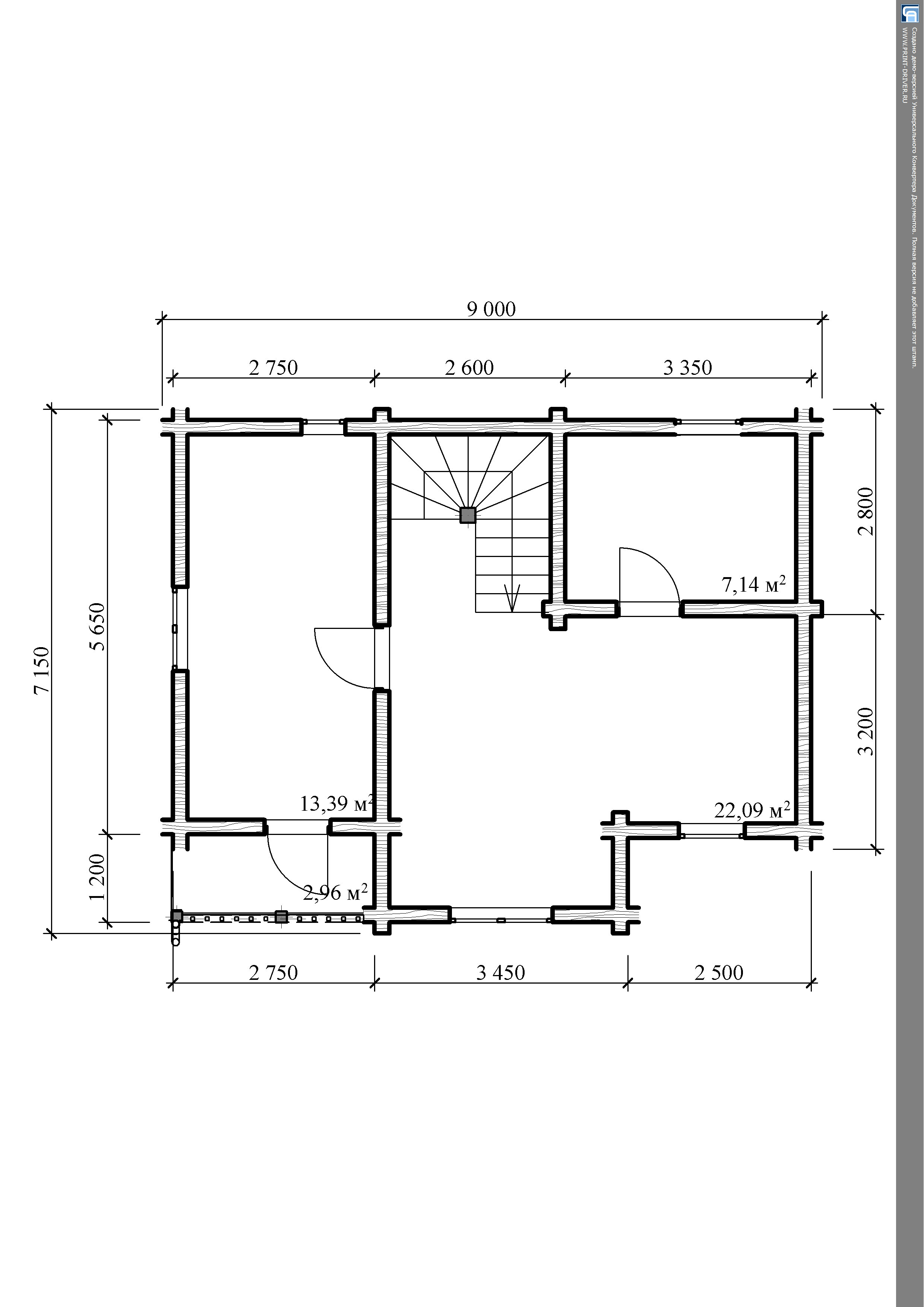
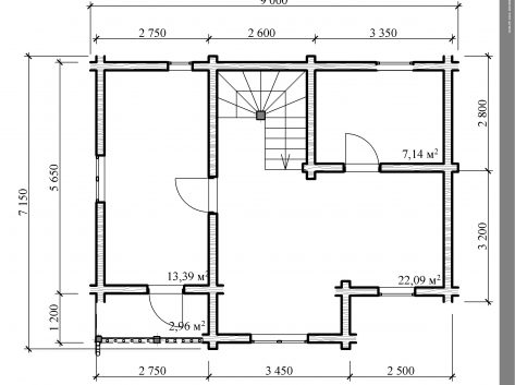
| Технология: | Бревно диаметром от 220 мм. |
| Фундамент | Забивные сваи
Обвязочный брус 150 х 150 мм. Гидроизоляция — 1 слой |
| Стены и перегородки | Стены выполнены из оцилиндрованного бревна диаметром 220 мм. с лунным пазом и чашкой естественной влажности
Перегородки из бревна |
| Перекрытия | Лаги пола, перекрытия –доска 50х150 мм.
Утепление пола 1 этажа: минеральная вата толщиной 150 мм. Утепление межэтажных перекрытий — 100 мм. Мембранные плёнки: Влаго-ветроизоляция А по наружному контуру утеплителя; Паро-изоляция В по внутреннему контуру утеплителя |
| Кровля | Стропила доска обрезная 40х150 мм.
Утепление–минеральная вата толщиной 150 мм. Влаго-ветроизоляция А по наружному контуру утеплителя; Паро-изоляция В по внутреннему контуру утеплителя. Покрытие — металлочерепица
|
| Внутренняя отделка | Внутренняя отделка потолков: Рау-Хаус (имитация бруса) или дюймовка (под натяжные)
Настил пола: Фанера (под ламинат, линолеум) |
| Окна | ПВХ, по проекту |
| Двери | Дверь входная: металлическая с утеплением и замком
Двери межкомнатные: МДФ |
| Лестница | Деревянная по проекту. Ограждение лестницы — брусок |
| Высота 1 этажа | 2,7 м. |
| Высота 2 этажа | 2,5 м. |
| Дополнения: | Возможны изменения в проекте в соответствии с пожеланиями заказчика. |
| Стоимость | 2 850 000 руб. |


