Комплектация включает в себя:
| Технология | Сборно-каркасная |
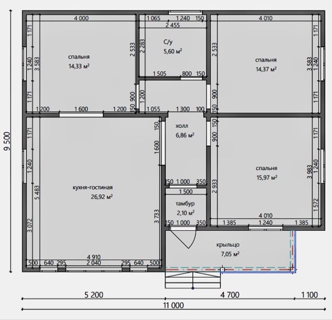
Возможны любые изменения во внешнем виде, планировке и комплектации.Стоимость указана без учета работы. Итоговая стоимость зависит от комплектации и месяца строительства. |
|
| Фундамент | Забивные ЖБ сваи |
| Каркас | -Деревянный каркас камерной сушки несущих стен из доски сечением 50х150 мм. (шаг 590 мм.), с усилением. Лаги пола, перекрытия –доска 50х200 мм. (шаг 590 мм.)
-Утепление наружных стен, пола, потолка: 150 мм. -Мембранные плёнки: Влаго-ветроизоляция А по наружному контуру утеплителя; Паро-изоляция В по внутреннему контуру утеплителя |
| Кровля | Металлочерепица (цвета в ассортименте) |
| Наружная отделка | Рау-Хаус (имитация бруса) с заводской покраской или Хауберг (отделка под кирпич) |
| Внутренняя отделка | Отделка стен, перегородок и потолков — ГКЛв Настил пола — Фанера |
| Окна | ПВХ, двухкамерный стеклопакет (по проекту) |
| Двери | Межкомнатные — МДФ
Входная — металлическая, утепленная |
| Коммуникации
(отопление, электрика, септик, скважина) |
Рассчитываются отдельно |
| Высота этажа | 1 этаж — 2,7 м |
| Стоимость | 2 300 000 руб. |








