Комплектация включает в себя:
| Стоимость |
4 700 000 руб.
|
| Технология | Проект может быть выполнен из клееного бруса или профилированного бруса |
| Фундамент | Рассчитывается отдельно. В стоимость не входит |
| Стеновой комплект | Клеёный профилированный брус сечением 160х185(h) мм. Балки и столбы клеёные |
| Перекрытия | -Перекрытие между цоколем и первым этажом: Доска камерной сушки, 50х200 мм.
— Перекрытие между первым и вторым этажами: Доска камерной сушки, 50х200 мм. |
| Кровля | -Стропильная система: Доска камерной сушки, 50х200 мм.
-Обрешётка верхняя и нижняя, и контрообрешётка: Доска и бруски камерной сушки. -Утепление кровли: 150 мм. Базальтовый утеплитель. -Гидроизоляционная мембрана. Пароизоляционная плёнка. -Кровельные материалы: Металлочерепица |
| Окна | Из ПВХ – профиля (размеры в соответствии с проектом) |
| Двери и лестница | Межкомнатные двери — филенчатые
Входная дверь — металлическая, с терморазрывом Лестница — по проекту, с ограждениями |
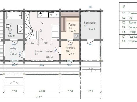
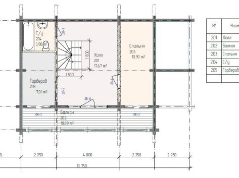
| Высота этажей | 1 этаж — 2,7м.
2 этаж — 2,5м. |
| Коммуникации
(электрика, отопление, вентиляция, септик, скважина) |
Рассчитываются отдельно |
| Стоимость |
4 700 000 руб.
|








Отзывы
Пока никто ничего не написал, хотите вы оставить свой отзыв?